
予算内で「住みたい場所」も「ちょうどいい広さ」も諦めない、住まいの新しい選択肢。
新築の安心感を、手の届く価格で。新サービス「The R.」誕生。
住まい選びに「3つの新基準」
住まい選びに「3つの新基準」



【品質】
見えないところまで、安心。
ブラックボックスになりがちな、建物の過去の修繕履歴や目に見えない配管部分。資料から「建物の裏側」まで見える化してご説明し目に見えない部分も含めた安心を提供します。
【エリア】
住みたい街で、「持ち家」を。
「新築価格」ではなく、市場の「適正価格」で物件を取得。今まで手の届かなかった、生活に便利な街や将来も価値の落ちにくいエリアなど、立地にこだわった物件探しを可能にします。
【内装】
間取りを「つくる」という新発想。
既成の間取りに無理やり合わせて暮らすのはもうおしまい。在宅ワークにぴったりの書斎や
趣味の映画や料理を楽しめる広いLDKなど、暮らし方にあった「ちょうどいい」住まいが手に入ります。
👨👩👧「臨月を迎えようとするタイミングだったので、2回の打ち合わせで、間取りに集中できたのはちょうどよかった」
特徴1.「間取り」に特化
ある調査*では、8割が今の住まいに不満を抱えており、その不満の上位3位に入るのが「間取り」に関する悩みでした。
本サービスでは、2回の打ち合せで広いリビングや効率的な家事動線など、家族構成やライフスタイルに合わせて、部屋の広さや数、動線、配置、収納等を思いのままにつくることができます。
*リノベる株式会社「パワーカップルの支出に関する意識調査」(2024/9/4) https://renoveru.co.jp/news/20240904/
👨リセールを前提にしていて資産性は気にしていたので、コストを抑えながら、上質でシンプル、余白のある空間は、多くの方にとって魅力になると思った
特徴2.「仕様」はシンプルで上質なものを厳選
「The R.」の由来は、「”The” Renovation」。上質でシンプル、合理的で美しく、長く愛され定番となる「これからのリノベーションの定番」を目指しました。合理的に無駄はそぎ落としながらも、素材の質感は大事に、ロングライフなものづくりを目指しています。
![]()
特徴3.わかりやすくリーズナブルな価格設定
仕様が決まっていることで、工事費用は平米数で決まる定額制とオプションの組み合わせで簡単に算出が可能。
そのため総予算の把握がしやすく、予算オーバーの心配もありません。
👩インテリアが大好き。フルオーダーよりも工事費を抑え、憧れの家具を買いました
特徴4.テイストは「インテリア」で仕上げる
インテリアコーディネートひとつでお部屋を⾃分好みに変えられます。抑えられた工事費用を、憧れの家具購入に充てるという選択も可能。
リノベるにはインテリアの専門チームがあり、トータルコーディネートの提案もいたします。
ワンストップサービス事業者 国内No.1※のリノベるで、利用者急増中
リノベ済より満足度高く、フルオーダーより簡単に
間取りや収納に不満はもちながら時間の余裕が持てない多忙な共働きご夫婦やご家族、
「フルオーダーするほどこだわりたいわけじゃない…」というお客様に選ばれ、
NPSスコア(顧客推奨度)では、フルオーダーと同様の高い満足度を記録しています。
中古マンションの取り扱い実績多数
- 築31年以上の物件取り扱いも多く、築浅から築古まで最適な物件をご提案
- 通算7,000戸のリノベーション実績により、中古マンションの管理状態を適切に見極め
インテリアコーディネート
専属のインテリアコーディネーターが、
内装に調和したデザインと必要な機能を備えたカーテン・照明・家具などをご提案。
インテリア選びが同時進行できるので時間を有効活用、インテリアの選択肢も広がります。
※リフォーム産業新聞1622号(2024/10/28発行)『マンションリフォーム売上ランキング2024』にて、ワンストップサービスを手掛ける事業者として首位
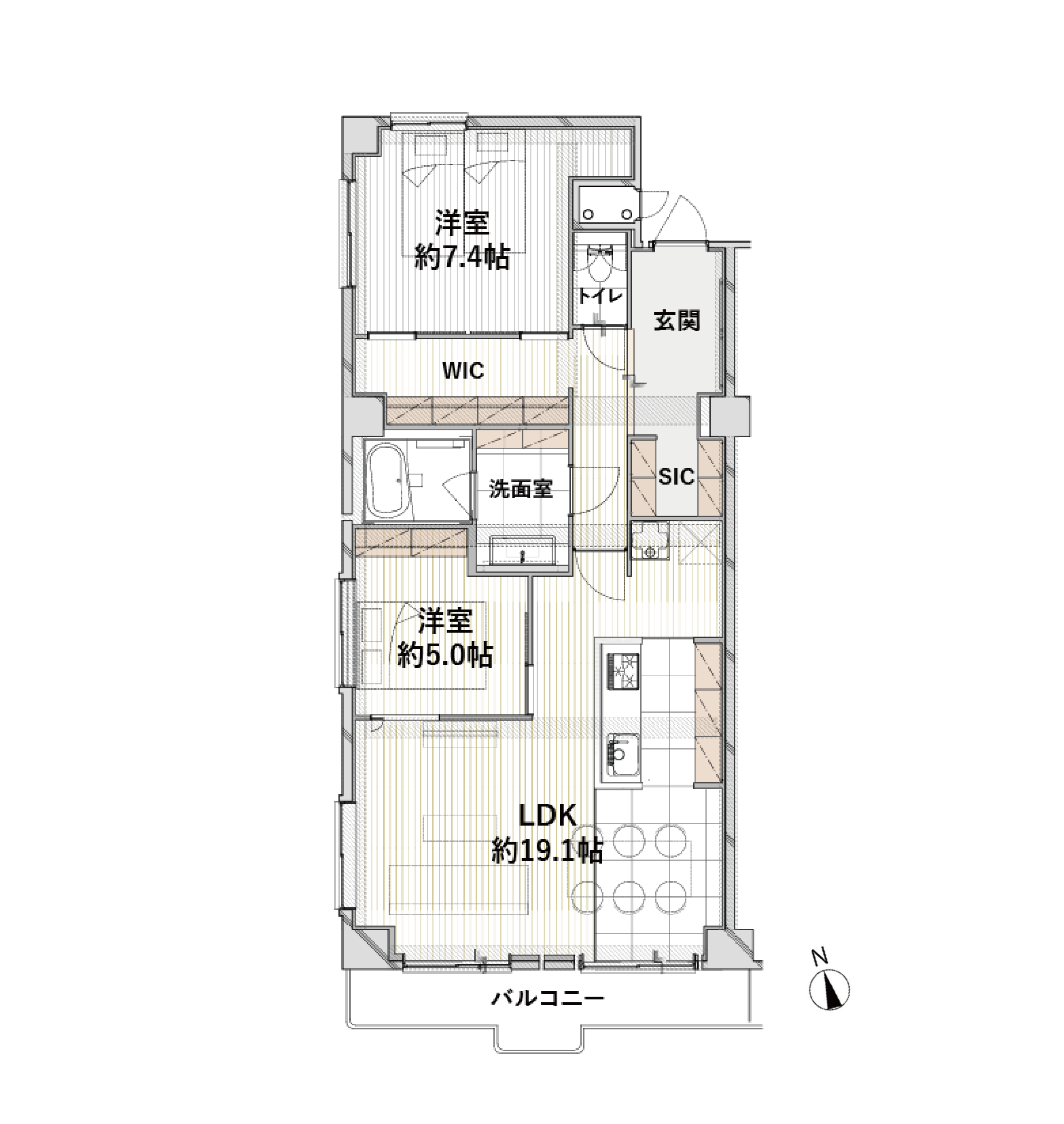
【81.9㎡ / 2LDK】ふたり暮らし~ファミリー向き
こちらのコンセプトルームの仕様(設備や素材)そのままに、
間取りをオーダーメイドできます!
ぜひ、実物を体感ください
〒135-0047東京都江東区富岡
東京メトロ東西線「門前仲町」駅まで 徒歩7分
東京メトロ東西線「木場」駅まで 徒歩7分
都営大江戸線「門前仲町」駅まで 徒歩7分
- ご相談
サービスの詳細やスケジュールを確認。資金計画もこのタイミングで。 - 物件探し
新着物件のチェックやハザードマップの確認などはリノベるにお任せください。
間取りを無視して選べるので候補が広がります。 - 2回の打合せで間取りを決定
インテリアも一緒に検討できます。 - 工事
配管などを含むフルスケルトン工事を実施します。 - あなたにぴったりのマイホーム完成!
物件探し中の方もこれから探し始める方も
理想の物件が見つからない・内覧に行く時間がない・決め手が分からない、という方も、お気軽にご参加ください。

【品質】
見えないところまで、安心。
ブラックボックスになりがちな、建物の過去の修繕履歴や目に見えない配管部分。資料から「建物の裏側」まで見える化してご説明し、目に見えない部分も含めた安心を提供します。

【エリア】
住みたい街で、「持ち家」を。
「新築価格」ではなく、市場の「適正価格」で物件を取得。今まで手の届かなかった、生活に便利な街や将来も価値の落ちにくいエリアなど、立地にこだわった物件探しを可能にします。

【内装】
間取りを「つくる」という新発想。
既成の間取りに合わせて暮らすのはもう終わり。暮らしに合わせて間取りをつくるから、在宅ワーク用の書斎や、趣味の映画・料理を楽しめる広いLDKなど、欲しかった「ちょうどいい」住まいが手に入ります。
【 01|ワンストップ】
物件探し~アフター保証まで窓口ひとつ。
物件探しから住宅ローン審査、設計・施工、アフター対応にかかるすべての窓口を一本化。
不動産会社や銀行と個別にやり取りする手間をなくし、シームレスな住まいづくりを叶えます。

【 02|定額制】
予算オーバーの不安をゼロにする、わかりやすい料金体系。
不透明になりがちなリノベーション費用を、㎡数に基づく完全定額制に。
必要な予算の見通しが立てやすいので、最後まで安心して住まいづくりを進められます。

【 03|フルスケルトンリノベーション】
中身から新しく。だから安心。
フルスケルトン方式のリノベーションは、床・壁・天井だけでなく、排水管や電気配線などのインフラ部分まで全て刷新。
間取りは暮らしに合わせて自由に決められるから既成の間取りでは叶わない、自分にぴったりの住まいが手に入ります。

【 04|厳選仕様】
プロが選んだ間違いのない素材。だから迷わず、高品質。
ライフスタイルにあわせて選べる3つのラインナップをご用意。
それぞれ飽きのこないシンプルで上質な素材・設備を厳選したので、誰でも失敗なく洗練された空間を叶えられます。


C1|飾らずに自分流で楽しむ
工事価格の目安 ※60㎡の場合
995万円(税込)~

E1|変わらない本物の価値
工事価格の目安 ※60㎡の場合
1235万円(税込 )程度~

G1|忙しい日常に癒しの時間を
工事価格の目安 ※60㎡の場合
2025万円程度(税込 )~
STEP 01
コンセプトルームでまずは実物を見学
写真や説明だけではわからないことも、実際の空間を見ると、自然とイメージできます。
広さ・間取り・素材感を体感しながら、お金のこと、スケジュールのこと、気になることをそのまま聞いてみてください。
.jpg)
STEP 02
マンションリノベのプロと一緒に物件探し
個人で見抜くことが難しい「隠れたリスク」をプロの目で取り除き、質の良い中古物件を厳選してご紹介します。
物件決定後のローンのサポートも充実。物件価格+リノベーション費用の「一体型ローン」のご紹介も可能です。

STEP 03
暮らしに合わせた間取りづくり
物件が決まったら、間取り決め。「間取りをゼロから考えるのは難しそう」という心配はご無用。
7,000戸超のリノベーション実績をもとに、在宅ワークの生産性を高める書斎や、家事が捗る家事動線など、
プロがあなたの暮らし方に合った住まいを形にします。
※1.リフォーム産業新聞1670号(2025/10/27発行) 『マンションリフォーム売上ランキング2025』にて、ワンストップサービスを手掛ける事業者として首位

見て、さわって、納得。
そこでの暮らしが想像できる
コンセプトルーム
「完成形が見えない不安」を解消するために、各地にご体感いただけるコンセプトルームをご用意しました。
写真や図面だけでは伝わらない素材の質感や空間の広がり、リノベーションならではの自由な間取りアイデアまで。
ご自身の目で見て確かめていただくことで、納得し、不安が安心に変わります。
お客さまの声
ずっと新築派で中古は選択肢にありませんでしたが、手の届かない新築に比べ手頃な価格と、最新設備・自由な間取りに惹かれてThe R.を選択しました。不安だった建物の古さや目に見えない部分の劣化状況も、プロの目で厳しくチェックいただき安心できました。結果、新築以上の満足度が叶いました。
子供の学区を優先すると、希望エリアでは新築は高すぎて手が出ず、持ち家は半分諦めていました。そんな時に出会った、築年数や既存の間取りに縛られず『立地』を軸に物件を探せるプロセスは本当に画期的。おかげで親も子も住み慣れた街で、予算を守りながら理想の暮らしを手に入れることができました。
色々な物件を見ましたが、いつもどこか間取りが『惜しい』と感じ、決断できずにいました。The R.ではライフスタイルに合わせて間取りを一から自由に設計できるため、憧れだった大型のウォークインクローゼットや対面キッチンもすべて形にできました。仕様もプロに厳選されているだけあって使い勝手もよく本当に満足しています。
信頼の根拠は、事実とデータ。
選ばれ続けてNo.1※
7,000戸超の豊富な実績データがあるからこそ、
住まい選び・住まいづくりにおける「見えないリスク」を未然に回避。
プロの目利きで、お客様一人ひとりに合わせた
「失敗しない最適解」をご提案いたします。
建物の管理状況や修繕履歴といった客観的な事実をベースに、
納得感のある住まい選びと住まいづくりをサポートします。
※リフォーム産業新聞1670号(2025/10/27発行) 『マンションリフォーム売上ランキング2025』にて、ワンストップサービスを手掛ける事業者として首位
まずは実物で
「ちょうどいい」を確かめてみてください。
新築だと手の届かなかったあの街での暮らしや、
諦めていた広々リビングやたっぷり収納のある暮らし。
The R.なら、あなたが欲しかった「ちょうどいい」暮らしが叶うかもしれません。
本当に自分たちにとって無理がないか、納得できる選択なのか。
その答えを、完成した住まいを実際に体感ながら、確かめてみてください。
サービスをお選びください
参加希望エリアをお選びください
※「2.参加希望エリア」を選択すると、コンセプトルームが表示されます
コンセプトルームをお選びください
下記の日程表から日程を選択の上、お申込みフォームにお進みください。
コンセプトルームのご案内や質疑応答を含め、所要時間は2時間程度です。直近の日程が埋まっている場合は、日程表から先の日程をお選びください。
第一希望の日時をお選びください
第二希望の日時をお選びください
人気のイベントはこちら。お好きなショールーム、日程から参加予約いただけます。







